top of page
A Barn in Normandy
[Normandy, France ]
Ongoing Construction: 2021 -
Client: Private Owner
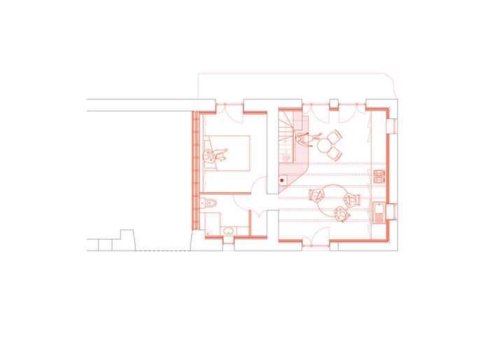
This project is located in the countryside in Normany, two hours away from Paris.
The idea of the clients was to transform part of a an old farm house into a small intimate week-end retreat.
The design tries to capture the rural identity of the building while providing a comfortable contemporary vision for the inside space.
Spaces are interconnected and transitions are created through furniture; architecture and furniture are one. Therefore the design is almost exclusively made of wood highlighting the existing stone walls; shining a new light on this old barn through the contrast it creates.
bottom of page












